Affittasi da maggio 2026 uffici di 495m2 suddivisi su due piani
In evidenza
Affitto
- CHF 9,281
In evidenza
Affitto
Affittasi da maggio 2026 uffici di 495m2 suddivisi su due piani
- CHF 9,281
Panoramica
- Ufficio/Commerciale
- 495 mq
Descrizione
L’elegante e rinnovato stabile ubicato in Via Balestra 31/33, si trova a pochi minuti dalla zona pedonale e dall’autosilo Balestra, ed offre un comodo ristorante al piano terreno.
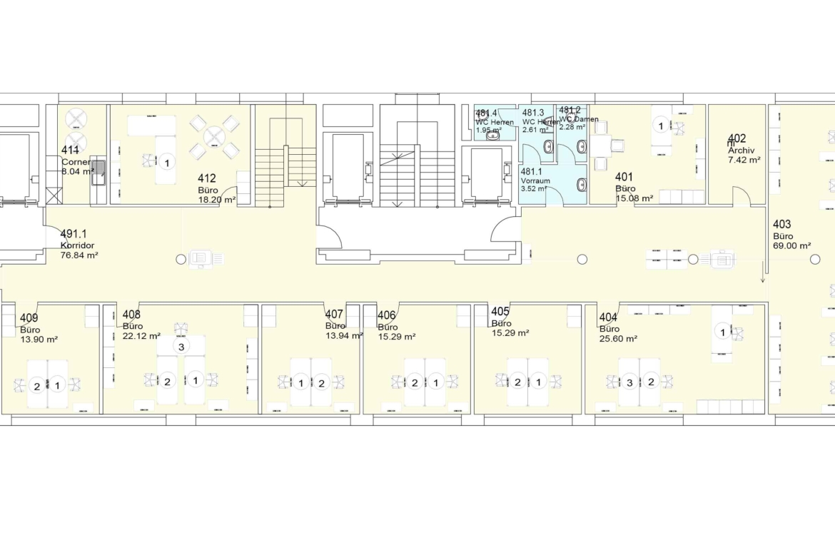
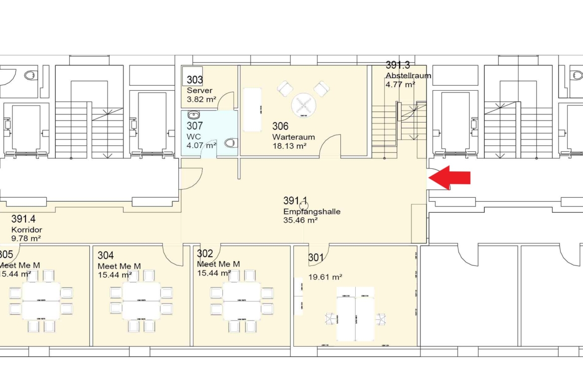
I moderni locali con una SUL di 495m2, si trovano al 3. ed al 4. piano, connessi da una scala interna ed offrono quanto segue:
- Impianto di aria condizionata singolarmente regolabile
- Sistema di ventilazione
- Pavimento tecnico
- Due servizi (uomo/donna al 4. piano) + un servizio al 3. piano
- Pareti insonorizzate fra le sale clienti del 3. piano
I locali vengono affittati a CHF 225/m2 + acconto mensile per le spese accessorie di CHF 2’063, totale affitto mensile:
Indirizzo
Apri su Google Maps-
Città: Lugano
-
Cantone: Ticino
-
Area: Ticino
-
Paese: Svizzera
Dettagli
Aggiornato il Novembre 14, 2025 at 12:22 am-
Prezzo CHF 9,281
-
Dimensioni della proprietà 495 mq
-
Tipologia Ufficio/Commerciale
-
Stato immobile Affitto














